Render Infografía de Arquitectura – Casos reales
En este caso hemos trabajado en un piso que necesita reforma en Madrid, barrio de la Latina, habia que hacer un render para mostrar a posibles interesados como se puede dejar el piso y de esta manera agilizar su venta. Primero Hicimos un reportaje fotográfico en el estado actual para dejar constancia y poder mostrar a clientes cual es el punto de incio.
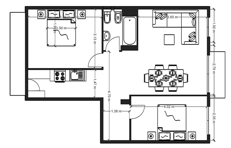
Luego hicimos el levantamiento de planos 2d para poder hacer el renderizado acorde a las medidas reales que tiene la propiedad, no queriamos que nuestras ideas no se pudieran ejecutar por inconsistencias en la propiedad.
Ya con el plano nos pusimos a trabajar para sacar adelante el proyecto de infografías y video de la propiedad, el renderizado completo con movimiento de cámara dentro del piso para dar una clara visión de las posibilidades de reforma que tiene el piso.
Render Infografía de Arquitectura - Casos reales (7)

Render Infografía de Arquitectura - Casos reales (4)

Render Infografía de Arquitectura - Casos reales (8)

Render Infografía de Arquitectura - Casos reales (9)

Render Infografía de Arquitectura - Casos reales (16)

Render Infografía de Arquitectura - Casos reales (12)

Render Infografía de Arquitectura - Casos reales (3)

Render Infografía de Arquitectura - Casos reales (2)
